Call Us Today! (919) 544-8887  [email protected]
[CC108] Choose Material Basic Multi Flue Chimney Cap Top Mount Expanded Aluminum Screen Discover the Basic Multi Flue Chimney Cap, made in USA, designed to protect your chimney from debris and weather damage. Shop now for quality! CC108

Basic Multi Flue Chimney Cap

Product SKU :
Helpful Crowd review badge icon

495.00 495.0 USD 495.00

495.00

/ ea
Have a CUSTOM request? Please EMAIL us for a quote.
  • Material
  • Mount Type
  • Approximate Width
  • Approximate Length
  • Actual Dimensions
  • Add 1/4" to Length and Width?
  • Screen Height
  • Screen Type
  • Product custom made to order

This combination does not exist.

ADD TO CART BUY NOW
Product custom made to order: I understand this product is custom made to order and cannot be returned.

Terms and Conditions
30-day money-back guarantee
Lead Time: 32.0 Days

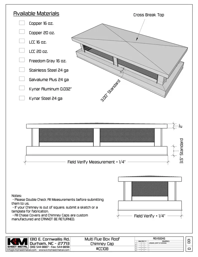
Custom Multi-Flue Box Style Roof Chimney Cap

Available in Copper, Lead Coated Copper, Freedom Gray, Stainless Steel, Kynar Aluminum and Galvalume

This basic, simplistic chimney cap features a box style roof with an x-bend to direct water away from its center point. It can be side mounted or top mounted with a removable roof for ease to clean.
This is the exact same design as the CC100, with a different roof sttyle. Copper or aluminum screen (expanded metal) is used to allow for ventilation.
This product is cut by laser to ensure a perfect fitting.
Vertical supports (screen area) are added as deemed needed by K&M.
For special requirements, custom designs, sizes and different materials, please contact us for pricing.
Made in the USA
.

Materials

  • Copper - 16 oz. and 20 oz.
  • Freedom Gray® - 16 oz. and 20 oz.
  • Galvalume Plus - 24 Gauge
  • Kynar® Aluminum - 0.032"
  • Kynar® Galvalume (Steel) - 24 Gauge
  • Lead Coated Copper - 16 oz. and 20 oz.
  • Stainless Steel - 2B 304 24 gauge

Specifications

  • Base height: 3.5"
  • Base width (horizontal portion): 3"
  • Vertical support width (corner): 2.5" x 2.5"
  • Vertical support width (middle - if present): 2.5"
  • Screen height: 10", 12", 16", 18", 24" and 36"
  • Mount: Top mounted or Side mounted

Availability

  • Custom Made to order
  • Made in the USA

CA Residents: Prop 65 Warning(s) New Page Link Icon
Ordering Instructions
  • A - Please fill out the form in order. With each selection, the main image changes to reflect your choice.
  • B - Approximate width and Approximate length fields are used calculate the price of your chimney cap. Pick the ranges that match your dimensions.
  • C - For side mount configurations, please make sure to either tell us to "Add 1/4" to Length and Width" via selecting "Yes" in that field, or pre-add at least 1/4" to your exact dimensions and tell us not add another 1/4", unless necessary. Ordering the exact dimension of your chimney will result in a chimney cap too tight that will not fit without costly on site modification.
  • D - Please do not place an order for a chimney cap out of square. Instead, contact us for a quote. A template or sketch may be necessary.
    It is mostly common to order on the square caps for small, out of square gaps, up to 0.75"-1", since most of the time chimneys are out of square. However, it is a good idea to make a template on site and test fit to make sure the chimney cap would fit.
    Shims can also be used if necessary on side mount applications to avoid denting the side of the chimney cap.
Top Mount vs. Side Mount

Top Mount: A top mount chimney cap is ideally used on irregular shape chimneys, those with out of square corners or made out of stones for example. It can also be used when a cap smaller than the chimney itself is desired (which also makes it less costly), or simply if its visually preferred; when the vertical side skirt portion present on side mount caps is not a desired feature.

Side Mount: An outside mount chimney cap features a vertical mounting skirt covering part of the side of the chimney, usually around 3.5". This is the ideal way to mount a chimney cap in most instances, as it covers the whole top of the chimney, protecting it against the weather.
Side mounting is ideal in most situations if possible.

Top Mount vs. Side Mount Chimney Caps
Installation

Top Mount: Typically, a top mounted cap will be attached with construction adhesive. It can also be attached via tapcons, screws or anchors, however, this is normally not desirable as it is something that would need to be waterproofed.
It can also be either soldered to an existing chase cover if present, or attached via zip screws, rivets, or even the aforementioned screws, anchors or tapcons.

Side Mount: This most common version of our caps can be mounted via screws, masonry pins, anchors or tapcons. Unlike a top mount cap, this is to be mounted from the side, through the vertical side portion of the chimney cap base (a.k.a. skirt) which can be easily drilled. It can however, also be mounted via construction adhesive, using the underside of the horizontal portion of the base like a top mount cap.
This is only typically done because its quicker/easier, or in order not to see the side mounted fastener. This method is not as common.
Although installation is considered simple and straight forward, we recommend that it be done by a professional.

Top Mount vs. Side Mount Chimney Caps

Submittals & Downloads
Color and Material Options

Kynar® Aluminum & Galvalume Steel

Black kynar aluminum

Black

Matte black kynar steel

Matte Black
**24 Gauge Steel Only

Dark bronze kynar aluminum and galvalume

Dark Bronze

Medium bronze kynar aluminum and galvalume

Medium Bronze

Almond kynar aluminum and galvalume

Almond

Bone white kynar aluminum and galvalume

Bone White

Copper penny kynar aluminum and galvalume

Copper Penny

Charcoal kynar aluminum and galvalume

Charcoal

Special Order Colors

Special Order colors require a minimum 2000 sqf. purchase for coil. Most colors have a 1 sheet minimum per order. Extra freight charges apply.

Patina green kynar aluminum and galvalume

Patina Green

Teal kynar aluminum and galvalume

Teal

Hemlock green kynar aluminum and galvalume

Hemlock Green

Forest green kynar aluminum and galvalume

Forest Green

Hartford green kynar aluminum and galvalume

Hartford Green

Evergreen kynar aluminum and galvalume

Evergreen

Hunter green kynar aluminum and galvalume

Hunter Green

Arcadia green kynar aluminum and galvalume

Arcadia Green

Military blue steel kynar aluminum and galvalume

Military Blue

Berkshire blue kynar aluminum and galvalume

Berkshire Blue

Graphite kynar aluminum and galvalume

Graphite

Interstate blue kynar aluminum and galvalume

Interstate Blue

Slate blue kynar aluminum and galvalume

Slate Blue

Award blue kynar aluminum and galvalume

Award Blue

Burnished slate kynar aluminum and galvalume

Burnished Slate

Aged bronze kynar aluminum and galvalume

Aged Bronze

Mansard brown kynar aluminum and galvalume

Mansard Brown

Burgundy kynar aluminum and galvalume

Burgundy

Terra cotta kynar aluminum and galvalume

Terra Cotta

Cardinal red kynar aluminum and galvalume

Cardinal Red

Colonial red kynar aluminum and galvalume

Colonial Red

Midnight bronze kynar aluminum and galvalume

Midnight Bronze

Musket gray kynar aluminum and galvalume

Musket Gray

Sierra tan kynar aluminum and galvalume

Sierra Tan

Sandstone kynar aluminum and galvalume

Sandstone

Slate gray kynar aluminum and galvalume

Slate Gray

Cityscape kynar aluminum and galvalume

Cityscape

Granite

Stone white kynar aluminum and galvalume

Stone White

Anodic clear kynar aluminum and galvalume

Anodic Clear

Silversmith kynar aluminum and galvalume

Silversmith

Silver kynar aluminum and galvalume

Silver

Champagne kynar aluminum and galvalume

Champagne

Zinc colored kynar aluminum and galvalume

Zinc

Weathered zinc colored kynar aluminum and galvalume

Weathered Zinc

Aged copper colored kynar aluminum and galvalume

Aged Copper

Weathered steel kynar aluminum and galvalume

Weathered Steel

More Information

Kynar coated material is supplied by Petersen (Pac-Clad).
Colors are mostly available in 0.032″ and 0.040″ aluminum as well as 24 gauge galvalume (steel).
Some colors are available in 0.050″ and 0.063″ aluminum as well as 22 gauge galvalume.
Material available in sheet or coil format.
Pac Clad Sheets measure 48″ x 120″. No minimum purchase, but fees apply.
Standard coil widths are 20″ and 24″. Coils can be cut to any custom with from 48″ and under. Fees apply. 2000 sqf minimum purchase.
To learn more about Kynar® PVDF coated materials, please click here.

Downloads / Color Charts

 PDF – PAC CLAD – Kynar Aluminum and Galvalume Steel Color Chart

Color Chart – To obtain a physical color chart or color chips, please visit this link.

Unpainted Stocked Materials

Bonderized Steel

Bonderized Steel

Copper

Copper

Freedom gray

Freedom Gray

Galvalume

Galvalume Plus

Galvanized Steel

Galvanized Steel

Lead coated copper

Lead Coated Copper

Mill finish aluminum

Mill Finish Aluminum

Stainless steel

Stainless Steel

More Information

Bonderized Steel: Also known as Paint Grip. Offered in 26 gauge G90. 24 gauge available as special order.

Copper is commonly stocked in 3′ x 10′ and 4’x10′ sheets, 11.75″, 15″ 18″, 20″, 24″ (16 oz. or 20 oz.) and 36″ coil (16 oz.). 24 oz. and 32 oz. are available in 3′ x 10′ sheets. Our typical stock is 1/8 to 1/4 hard copper, supplied by Aurubis, Hussey and Revere.
We also stock 1″ x 3/16″ x 12′ bar stock. Other sizes as well as 48 oz. copper are available as special order items.

Freedom Gray is commonly stocked in 3′ x 10′ sheets of 16 oz. and 20 oz. Coils are available as a special order item with a 1000 lb. minimum. Freedom gray is a Tin / Zinc coated copper from Revere Copper.

Galvalume Plus is an Acrylic coated metal, also known as Acrylume. K&M utilizes Acrylume E Plus™ supplied by US Steel.

Galvanized Steel: Offered in 26 gauge G90. 24 gauge available as special order.

Lead Coated Copper is commonly stocked in 3′ x 10′ sheets of 16 oz. and 20 oz. Special order items include 3′ x 8′ sheets and 12″, 15″, 18″, 20″ and 24″ coil stock. A minimum of 1000 lbs. is required for a coil order.

Mill finish Aluminum is commonly stocked in 4′ x 10′ sheets of 0.032″ and 0.040″.

Stainless Steel in normally available in 24 and 26 gauge 4′ x 10′ sheets, 304 alloy 2B finish. Other thickness, and finishes such as #4, #8 and 2D available as special order items.

Downloads / Color Charts
Looking for a custom color not listed? Please EMAIL your request with all information including the metal manufacturer for a quote.

Other colors, materials and thickness may be available upon request. Colors displayed for reference only.
Please click here for a full selection of colors and materials offered.

Choosing the right material

Chimney Cap Material: Copper, Stainless Steel, Aluminum or Galvalume (Steel)?

Colored Materials: The first thing to consider is whether something in colors is desired. If so, that narrows choices down to either Kynar Aluminum or Kynar Galvalume (steel). Kynar-based PVDF are coatings formulated to resist sun and weather damage.

  • Steel (Galvalume) - Available in colors: Zinc Aluminum coated Steel for higher corrosion resistance, coatted with Kynar colors. Comes in the same colors as aluminum with a more rigid substrate, however, it is also heavier. Galvalume materials have self healing properties where cut or scratched.
    Since this material is steel based, it is not an ideal choice for coastal (saltwater or brackish water) environments. For those, aluminum is the better choice.
  • Aluminum - Available in colors: Offering the same colors and look as Kynar coated galvalume steel at a lighter weight. Unlike galvalume, this can be used in costal environments.
  • Galvalume Plus (Acrylume): Zinc/Aluminum coated steel with an acrylic coating. Galvalume has a similar look to galvanized steel while being vastly more corrosion resistant. Galvalume materials also have self healing properties where cut or scratched.
  • Copper: Our most popular material. Copper does not rust and has antimicrobial properties. It is widely used in any environment. Copper can can be soldered or welded, which makes it a much better choice for now and future repairs. Copper comes with a raw finish that will start to patina immediately once outdoors, turning partly brown the day after the installation and mostly brown within a month. Although there's no precise way to determine due to many factors, copper will typically start to turn green within 25-35 years.
  • Freedom Gray: This copper based material offers all the same advantages as copper with a tin/zinc coating that will develop a mature slate gray patina after around one to three years of weather exposure.
  • Lead Coated Copper: Copper that has been dipped in lead. A traditional material that offers all the same advantages as copper. Because of the lack of solubility, not only lead coated copper prevents most if not all staining, it's environmentally safe.
  • Stainless steel: A trade off between color choices and sturdiness/longevity. While stainless steel withstands the test of time, it is limited to its mill finish (2B finish) look. The stainless steel we typically offer is a 304 alloy (most common). This alloy should not be used in coastal environments. A 316 marine alloy can be offered as a special order material.
  • Zinc: Special order. A traditional look at the cost of a more malleable, lighter material. While easier to work with, zinc is soft, and not always (depending on size and configuration) the best choice for a chimney cap. It can be offered as a special order in either a raw or other finishes.
Screen Specifications